
Firma „Mirtech” z Czarnkowa (woj. wielkopolskie) wybuduje nam aneks lekkoatletyczny w Szkole Podstawowej nr 7 przy ul. Krakowskiej. To jedyna oferta, jaka wpłynęła do ratusza.
- Opiewa na kwotę 2 011 310 zł. Nasz kosztorys inwestorski zakładał przekazanie na inwestycję kwoty 2,1 mln zł – mówi „Tematowi” Tomasz Kołosowski, dyrektor Wydziału Inwestycyjnego Urzędu Miasta.
- Teraz trwa procedura przetargowa. Wystąpiliśmy do „Mirtechu” o uzupełnienie dokumentacji. Obiecali zrobić to do najbliższego czwartku. Jeżeli wszystkie dokumenty będą zgodne z założeniami przetargu, wówczas podejmiemy ostateczne decyzje w tej sprawie i inwestycja będzie mogła się rozpocząć.
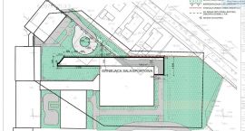
Nowy obiekt zostanie "przytulony" od północy do hali sportowej SP nr 7. Zostanie wyposażony w 4-torową bieżnię o długości 60 metrów i skocznię w dal pokryte poliuretanem. Po zakończeniu inwestycji "dobudówka" stanowić będzie jakby całość z obecnie istniejącą halą sportową. Tym samym nie będzie problemu z dostępem młodych lekkoatletów do zaplecza sportowego, m.in. szatni czy też zaplecza socjalnego, m.in. łazienek.
Roboty nad powiększeniem sali gimnastycznej powinny ruszyć w lipcu. Ich finał miasto zaplanowało na 30 września br. Koszt inwestycji będzie znany po rozstrzygnięciu przetargu.
Przypomnijmy. O budowie bieżni lekkoatletycznej w sąsiedztwie „siódemki” mówiono już w 2010 roku, Do tego prace planistyczne były nawet mocno zaawansowane. Jednak zawsze coś stawało na przeszkodzie. Aż do teraz. (sw)
Foto: S. Włodarczyk
Jeśli jeszcze tego nie zrobiłeś koniecznie zainstaluj naszą aplikację, która dostępna jest na telefony z systemem Android i iOS.
Chcesz być na bieżąco z wieściami z naszego portalu? Obserwuj nas na Google News!
Twoje zdanie jest ważne jednak nie może ranić innych osób lub grup.
Komentarze opinie